Home » Without Label » 29+ großartig Bild Plans For A Deck - 1 / The rv deck design above creates a perfect outdoor dining space for this modern fifth wheel.
29+ großartig Bild Plans For A Deck - 1 / The rv deck design above creates a perfect outdoor dining space for this modern fifth wheel.
29+ großartig Bild Plans For A Deck - 1 / The rv deck design above creates a perfect outdoor dining space for this modern fifth wheel.. Check back soon for more deck plans. The rv deck design above creates a perfect outdoor dining space for this modern fifth wheel. => click to download the pdf documents for this deck. This is an emerging area of debate among the industry. Add stylish seating to your deck or patio with an inexpensive and easy deck bench.
This is an emerging area of debate among the industry. Once your deck is installed, we can even help you learn how to best care for it with our deck maintenance buying guide. Angled deck (8) angled sides (1) bump out (1) corner notch (1) covered deck (1) double angle (1) double notch (10) Single level deck plans (51) when making a selection below to narrow your results down, each selection made will reload the page to display the desired results. This basic 1 level 16' x 10' deck is an easy to build and economical choice.
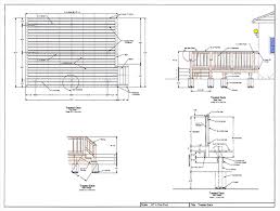
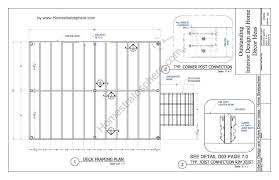
Deck Plans Family Home Plans from www.familyhomeplans.com 12′ x 16′ deck with stairs. Before you begin the design and build phases for your new deck, you'll need to do some planning. Once your deck is installed, we can even help you learn how to best care for it with our deck maintenance buying guide. Build a deck that adds to your living and entertaining space with deck plans that make the job seem easy. Our plans follow the prescriptive construction guide from the american wood council which is based on the international residential code. Image version of this deck's blueprints. Once you have a basic layout, bring it to lowe's to have an associate put together professional deck plans and a materials list. Every successful deck project should start with a professional set of plans.
All deck plans include very detailed drawings with full notation on footings, piers and the all important post to concrete connection for safety and longevity.
This is an emerging area of debate among the industry. Consumer and builder accept all responsibility and liability for all aspects of the use of any plan found on this website. It has cantilevered nooks on both sides that provide space for seating and barbecue storage. A site plan is a drawing that shows your property boundaries, the house, and other major features. Check back soon for more deck plans. 101 deck plans (decks.com) decks.com offers free 101 deck plans for low, medium, and high elevation decks, pool decks, and porch decks. Once your deck is installed, we can even help you learn how to best care for it with our deck maintenance buying guide. Many of the deck plans include features to make your deck unique including arbors, pergolas, built in benches and planter boxes. This next deck and railing is a beautiful addition to a 30 foot recreational vehicle. Angled deck (8) angled sides (1) bump out (1) corner notch (1) covered deck (1) double angle (1) double notch (10) Above ground pool deck plans free this above ground pool deck plans free graphic has 20 dominated colors, which include dell, palm leaf, kuro green, jolly green, gully, alexandrian sky, glacier blue, loden frost, tin, mythical blue, windows blue, air of mint, black, jelly bean, azure blue, baja blue, home world, calcareous sinter, button blue. 12 x 12 deck plans. Build and design a deck with one of the deck plans below.
The upper deck is just the right size for entertaining small groups—spacious but intimate. Building a pergola can be a simple to challenging building project depending on what. It has cantilevered nooks on both sides that provide space for seating and barbecue storage. This solid deck is an elevated deck design with stairs. Many of the deck plans include features to make your deck unique including arbors, pergolas, built in benches and planter boxes.
How I Built My Diy Floating Deck For Less Than 500 Pretty Passive from i2.wp.com It also shows the distances between elements in your landscape that might affect the deck construction. Luckily, a wide array of deck plans is available to you, online and offline, and often for free. The plans are free but require an email address. Once you have a basic layout, bring it to lowe's to have an associate put together professional deck plans and a materials list. These longer rv's are typically used for permanent vacation housing as they are more difficult to. A deck can provide your home's outdoor space with a comfortable, inviting area for relaxing and entertaining. Check back soon for more deck plans. Above ground pool deck plans free this above ground pool deck plans free graphic has 20 dominated colors, which include dell, palm leaf, kuro green, jolly green, gully, alexandrian sky, glacier blue, loden frost, tin, mythical blue, windows blue, air of mint, black, jelly bean, azure blue, baja blue, home world, calcareous sinter, button blue.
Many of the deck plans include features to make your deck unique including arbors, pergolas, built in benches and planter boxes.
The upper deck is just the right size for entertaining small groups—spacious but intimate. 12′ x 16′ deck with stairs. Deep plus bays and stairs—but it's big on features. To create the perfect deck, you first need to learn how to plan a deck. Our plans include a framing plan, front & side elevations, footing layout, 3d rendering cover sheet, material list and a typical details building guide. Above ground pool deck plans free this above ground pool deck plans free graphic has 20 dominated colors, which include dell, palm leaf, kuro green, jolly green, gully, alexandrian sky, glacier blue, loden frost, tin, mythical blue, windows blue, air of mint, black, jelly bean, azure blue, baja blue, home world, calcareous sinter, button blue. Building a deck level deck is a great outdoor project, as it will create a nice relation area. Every successful deck project should start with a professional set of plans. It also shows the distances between elements in your landscape that might affect the deck construction. Our plans follow the prescriptive construction guide from the american wood council which is based on the international residential code. This is an emerging area of debate among the industry. Image version of this deck's blueprints. 101 deck plans (decks.com) decks.com offers free 101 deck plans for low, medium, and high elevation decks, pool decks, and porch decks.
168 beyond basic construction tools, you will need: Angled deck (8) angled sides (1) bump out (1) corner notch (1) covered deck (1) double angle (1) double notch (10) => click here for the plans (pdf included) of the deck above. You can cut them flush later. Whatever your style, you'll find a bench plan you love in this extensive collection.
Design And Build A Deck from lda.lowes.com The upper deck is just the right size for entertaining small groups—spacious but intimate. 12 x 12 deck plans. Once your deck is installed, we can even help you learn how to best care for it with our deck maintenance buying guide. This solid deck is an elevated deck design with stairs. Build a deck that adds to your living and entertaining space with deck plans that make the job seem easy. Free 12 foot by 16 foot deck plan blueprint with pdf download. Luckily, a wide array of deck plans is available to you, online and offline, and often for free. This diy wood deck isn't huge—about 16 ft.
Absolutely no cost to you.
=> click to download the pdf documents for this deck. If you wish to use this deck design, we recommend downloading the pdf version. Materials include pallets, reclaimed wood, natural logs, dimensional lumber, cedar and teak. Free 12 foot by 16 foot deck plan blueprint with pdf download. If plans call for posts, cut them a few inches above the finished height of the deck framing. Simple tools and inexpensive materials make this a fun project for everyone in the. Once you figure out what you want your deck to look like with the help of our design tool, we'll provide you with a cost estimate, professional 3d rendering, a materials list and building plans. If you hit an obstacle like a rock, you can easily reverse the deck foot anchor out and move over a bit. Before you begin the design and build phases for your new deck, you'll need to do some planning. Design a deck and decor with videos and guides that walk you through from start to finish. Our plans follow the prescriptive construction guide from the american wood council which is based on the international residential code. Add stylish seating to your deck or patio with an inexpensive and easy deck bench. Planning your deck design 02:02.